Stanovanjska hiša
ROŽLAK
Vrsta gradnje: Nova gradnja
Namembnost: Enostanovanjska hiša
Lokacija: Zdole, Krško
Leto projekta: 2020
Naše delo na projektu:
Opis projekta
Zasnova stanovanjske hiše izhaja iz spoštljivega odnosa do krajine in lokalnega stavbnega izročila, interpretiranega skozi sodobno arhitekturno govorico. Objekt je umeščen v rahlo nagnjen teren, kjer z jasno orientacijo in premišljeno postavitvijo sledi topografiji ter omogoča odprte poglede v naravno okolje.
Arhitekturni volumen hiše temelji na preprosti, arhetipski obliki dvokapnice, ki je sodobno reinterpretirana z jasno artikulacijo fasad in natančno izbranimi materiali. Spodnji, svetlejši del objekta deluje kot stabilna podlaga, nad katero se dviga temnejši zgornji volumen, oblečen v opečno fasadno oblogo, glavna čelna fasada objekta pa je lesena. Kontrast med svetlo ometano fasado in horizontalno strukturiranim lesom poudarja razmerje med masivnostjo in toplino ter ustvarja uravnoteženo, brezčasno podobo hiše.
Osrednji bivalni prostori se odpirajo proti vrtu preko velikih steklenih površin, ki omogočajo obilico naravne svetlobe in neposredno povezavo notranjosti z zunanjim prostorom. Pokrita terasa, oblikovana kot ločen, a povezan volumen, predstavlja naravno nadaljevanje dnevnega prostora ter ustvarja kakovosten zunanji ambient za bivanje v vseh letnih časih.
Odprtine na fasadah so razporejene premišljeno in sledijo notranji prostorski organizaciji. Na bolj intimnih delih objekta so okna zadržana in vertikalno poudarjena, kar zagotavlja zasebnost, hkrati pa ohranja svetlost prostorov. Arhitekturni detajli so zadržani, vendar natančno obdelani, kar prispeva k celostni in umirjeni podobi objekta.
Hiša je zasnovana kot sodoben dom, ki se ne vsiljuje prostoru, temveč z njim vzpostavlja dialog. S svojo jasno obliko, naravnimi materiali in premišljeno prostorsko zasnovo predstavlja kakovostno bivalno okolje, prilagojeno sodobnemu načinu življenja in specifičnemu kontekstu lokacije.
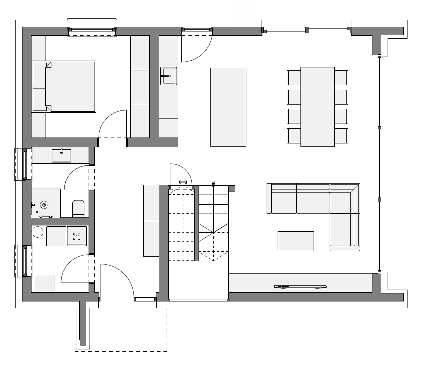
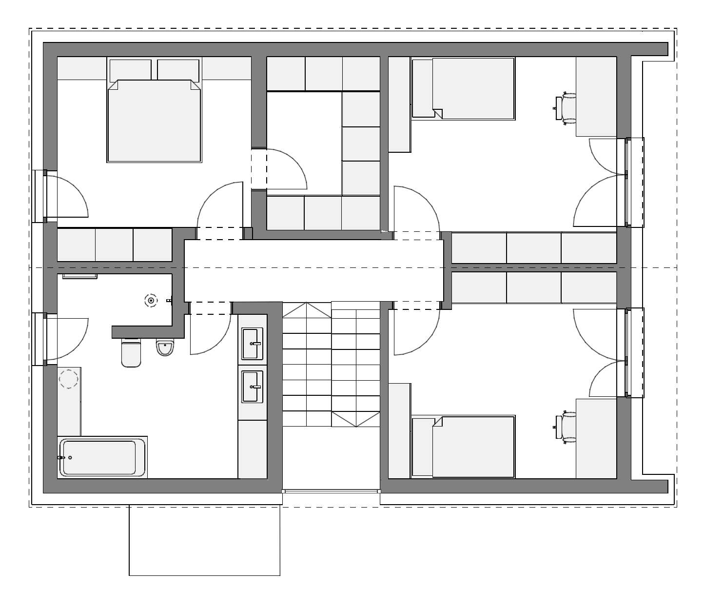
Tlorisna zasnova
Tloris pritličja

Tloris mansarde

Oblikovanje notranje opreme in interierja
Projekt interierja je bil izdelan s strani Kvadratura, studio za notranje oblikovanje.

























