Stanovanjska hiša
BEZEN
Vrsta gradnje: Nova gradnja
Namembnost: Enostanovanjska hiša
Lokacija: Novo mesto
Leto projekta: 2020
Naše delo na projektu:
Opis projekta
Hiša je sodobno zasnovan enodružinski objekt, umeščen na zgornji rob strmejšega pobočja, kjer arhitektura s premišljeno zasnovo izkorišča naravne danosti parcele. Volumenska kompozicija temelji na jasnem kontrastu med masivnim spodnjim delom in lahkotnejšim, svetlim zgornjim nadstropjem, ki se delno konzolno odpira proti vrtu.
Objekt je zasnovan kot dvonivojska hiša s klasično dvokapno streho. Minimalistična oblikovna govorica se izraža skozi čiste linije, umirjeno barvno paleto in skrbno izbrane materiale. Spodnja etaža je obdelana v teksturi temnejšega ometa, kar daje hiši stabilnost in poudari njeno zasidranost v teren. Zgornja etaža je izvedena v svetlem, gladkem fasadnem ovoju, ki deluje lahkotno in elegantno.
Velike zasteklitve so ključni element arhitekturne zasnove. Omogočajo obilico naravne svetlobe v notranjih prostorih ter ustvarjajo močno vizualno povezavo med bivalnimi prostori in zunanjim okoljem, saj je objekt umeščen na rob naselja, ob manjši gozdiček. Dnevni prostori se odpirajo proti vrtu in terasam, ki so zasnovane kot naravno nadaljevanje interierja ter ponujajo kakovosten zunanji bivalni prostor.
Vhodni del hiše je jasno definiran in nadkrit, poudarjen z minimalističnim nadstreškom in sodobno oblikovanimi detajli. Ob objektu je umeščen nadkrit parkirni prostor, ki je oblikovno usklajen z glavno stavbno maso in diskretno vključen v celoto.
Krajinska ureditev sledi naravni topografiji terena in dopolnjuje arhitekturo z mehko oblikovanimi zelenimi površinami. Prehodi med notranjim in zunanjim prostorom so premišljeni, celotna zasnova pa ustvarja občutek zasebnosti, odprtosti in bivanjskega udobja.
Hiša predstavlja uravnoteženo kombinacijo sodobne arhitekture, funkcionalne razporeditve in estetske zadržanosti, prilagojene sodobnemu načinu bivanja ter občutljivemu odnosu do prostora in okolja.
Tlorisna zasnova
Tloris kleti

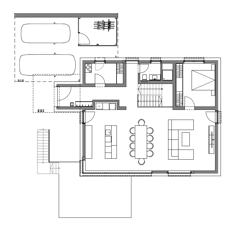
Tloris pritličja

Oblikovanje notranje opreme in interierja
Projekt interierja je bil izdelan s strani Kvadratura, studio za notranje oblikovanje.
























